CONTACT US

2 Bedroom Ground Unit

 

 

bergamot

Bergamot

 
TWO BEDROOM
 
1,486 ft2  

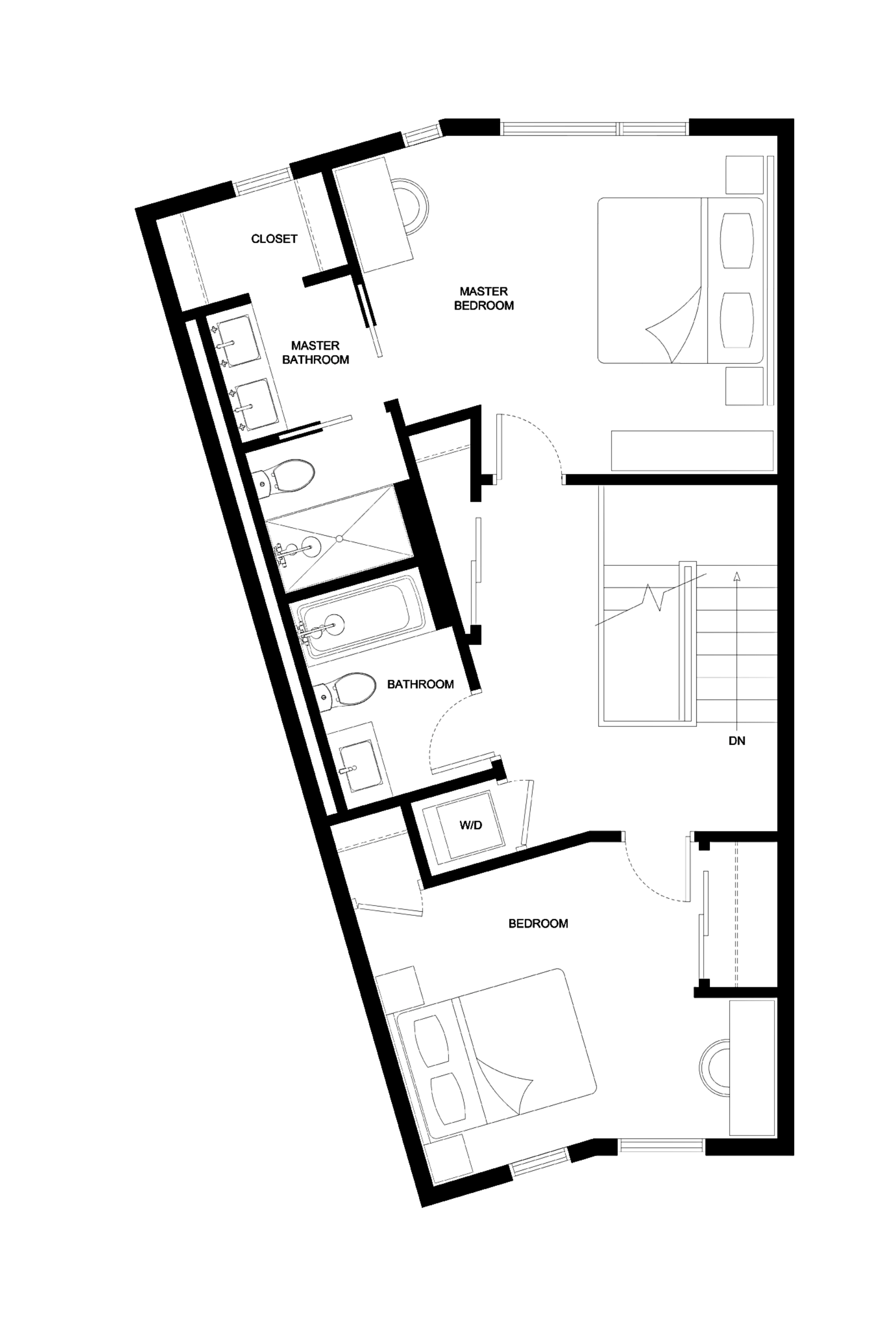
This stunning 2 bedroom layout is the epitome of efficient space planning. With 1486 square feet of space, there is room for everything that you need without any clutter or excess. Once entering the foyer from your private, ground floor entrance, the unit opens up into the main floor living space with lots of natural light shining through from the back windows. The living room and kitchen blend seamlessly for families, cooks and entertainers alike and flows out onto your private back patio. Upstairs you will find two beautiful, bright bedrooms and two full bathrooms; one ensuite off the master and another common bath off the hallway.

bergamot

Bergamot

 

TWO BEDROOM | 1,486 ft2


This stunning 2 bedroom layout is the epitome of efficient space planning. With 1486 square feet of space, there is room for everything that you need without any clutter or excess. Once entering the foyer from your private, ground floor entrance, the unit opens up into the main floor living space with lots of natural light shining through from the back windows. The living room and kitchen blend seamlessly for families, cooks and entertainers alike and flows out onto your private back patio. Upstairs you will find two beautiful, bright bedrooms and two full bathrooms; one ensuite off the master and another common bath off the hallway.

 
Feel free to expand to full screen to get the complete EVE Park experience. Welcome home!
All panoramas are an artistic interpretation and are subject to change. Property of EVE Park London LP.
 
Feel free to expand to full screen to get the complete EVE Park experience. Welcome home!
All panoramas are an artistic interpretation and are subject to change. Property of EVE Park London LP.

Ready to learn more about EVE Park?

 

CONTACT EVE PARK