
Similar to the Sycamore tree - one of the largest broadleaf trees in North America- the Sycamore unit is the largest offered at EVE Park. This expansive 2230 square foot unit spanning 3 floors not only provides ample areas for different space usage but can be configured into alternatives to fit your lifestyle (see Ironwood and Maple floorplans for modifications). Thoughtfully designed to incorporate space to live, work, eat, entertain, enjoy and relax, no corner has been ignored. With three bedrooms, three bathrooms and three separate living areas, this layout provides so much opportunity to make the space yours.

Sycamore
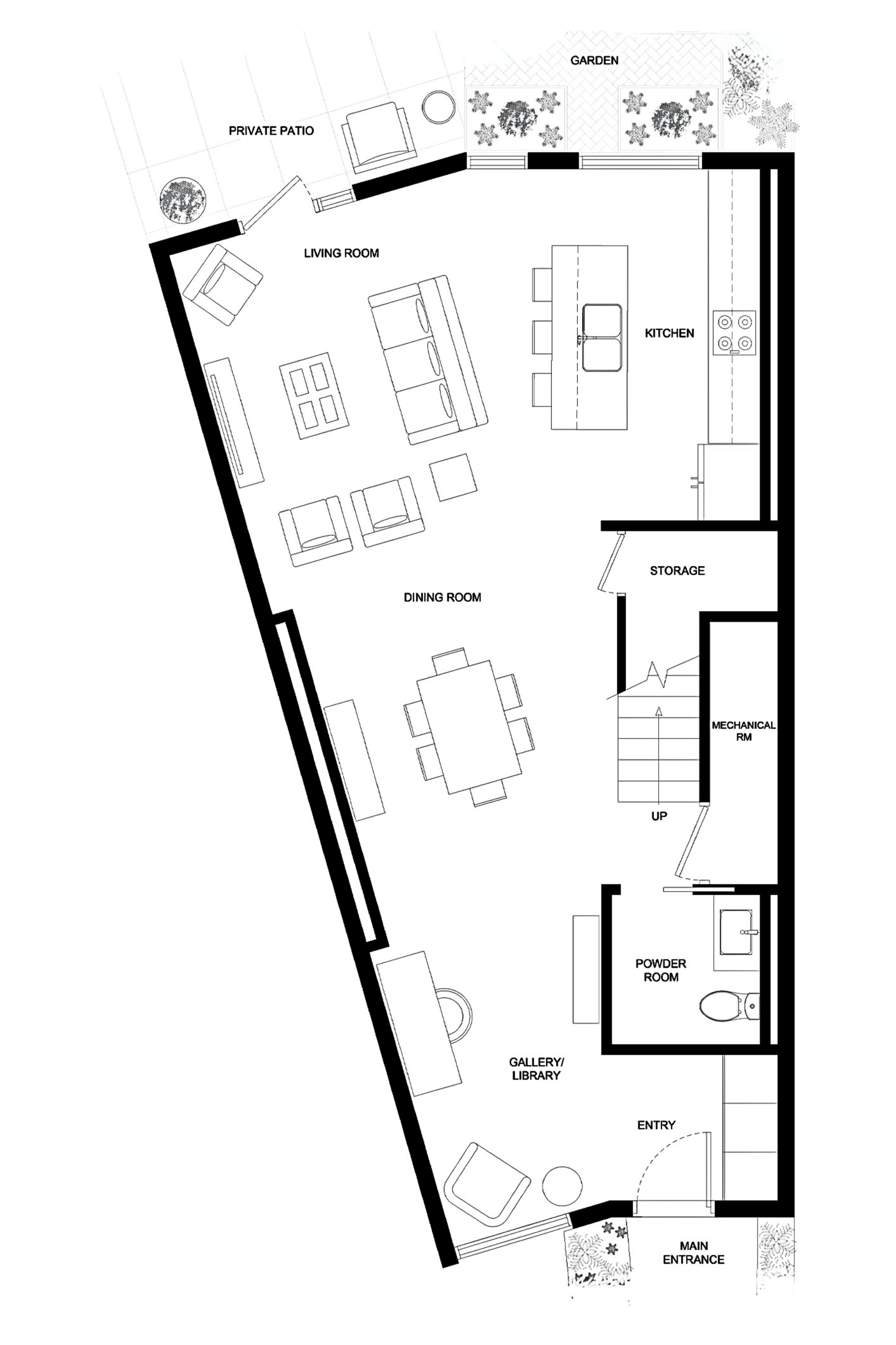
THREE BEDROOM | 2,229 ft2
Similar to the Sycamore tree - one of the largest broadleaf trees in North America- the Sycamore unit is the largest offered at EVE Park. This expansive 2230 square foot unit spanning 3 floors not only provides ample areas for different space usage but can be configured into alternatives to fit your lifestyle (see Ironwood and Maple floorplans for modifications). Thoughtfully designed to incorporate space to live, work, eat, entertain, enjoy and relax, no corner has been ignored. With three bedrooms, three bathrooms and three separate living areas, this layout provides so much opportunity to make the space yours.